
6490 Fox Street
West Vancouver
Gleneagles Single Family Home
4.0
Bedrooms
2.0
Bathrooms
Parking Spots
Square Feet
Single Family Home for Rent – 6490 Fox Street, West Vancouver
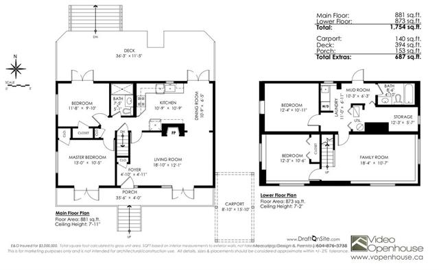
This beautifully renovated, move‑in ready 1,750 sq. ft. single family home is located on a quiet street in the desirable Gleneagles neighbourhood. Situated on a generous lot, the home offers 4 bedrooms and 2 full bathrooms with a practical and flexible layout.
The updated kitchen features cherry cabinetry, slate countertops, and quality finishes throughout. Both bathrooms have been fully renovated, offering a clean and modern feel.
Home Features:
- 4 bedrooms and 2 bathrooms
- 2 bedrooms on the main floor
- 2 bedrooms plus a large recreation room in the basement
- Bright and functional living spaces
- Large, level backyard
- Covered carport for convenient parking
Location Highlights:
- Walking distance to Gleneagles Elementary School
- Approximately 5‑minute drive to Rockridge Secondary School
- Close to Caulfeild Shopping Centre
- Near Gleneagles Community Centre and Gleneagles Golf Course
Tenant Responsibilities:
- All utilities (hydro, gas, municipal water and sewer)
- All yard maintenance
Additional Details:
- No smoking
- One‑year lease required
- Credit and reference check required
- Pets considered
Monthly Rent:
Property Photos
Property Amenities
4.0
Bedrooms
Yes
Pets Allowed
No
Swimming Pool
2.0
Bathrooms
~
Storage Locker
2.0
Parking Spots
No





























